1
$729,000 Sale
Listed 7 hours ago
638 Delainey ROAD
· 4
· 4.0
· 0
· 1932
Key Facts
Key facts for 638 Delainey ROAD
Property Type
House, House
Parking
Garage: Yes, 0 parking
MLS #
SK020534
Size
1932 sqft
Basement
Unfinished, Full (Unfinished)
Listed on
-
Lot size
-
Tax
-
Days on Market
-
Year Built
2025
Maintenance Fee
-
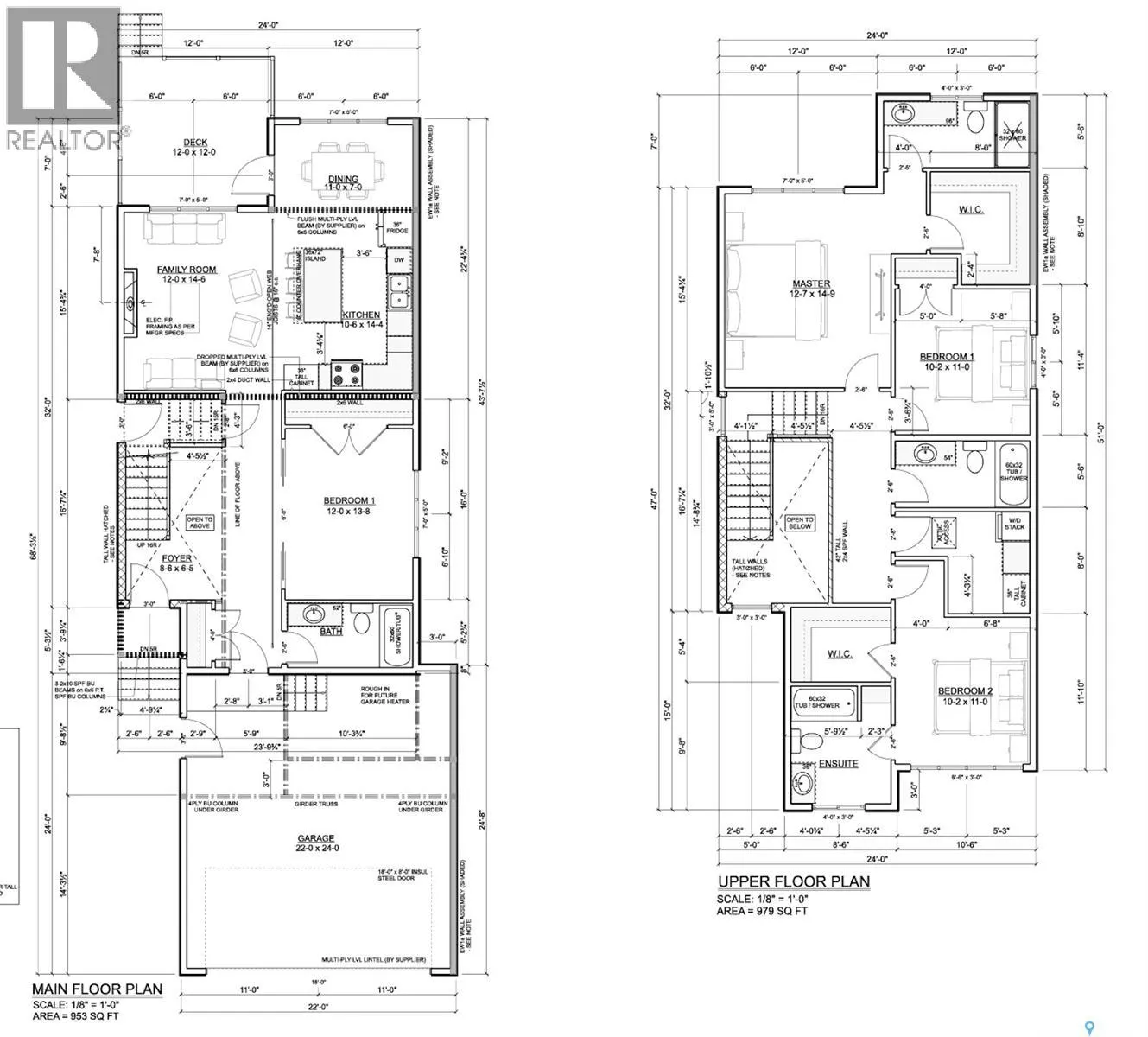
Description
Welcome to 638 Delainey Rd in Brighton! This beautiful 1,932 sq ft two-storey home features 4 bedrooms and 4 bathrooms, with completion expected in mid-November. Enjoy modern finishes throughout, including durable vinyl plank flooring, 9' ceilings, quartz countertops, and extended upper kitchen cabi...nets. The insulated garage includes an oversized 18' door. Infrastructure is in place for a future legal suite, adding value and flexibility. A stylish, well-designed new build in one of Saskatoon's most desirable neighbourhoods! (id:10452)
Similar Properties (No results)
Room Types
3pc Bathroom
-
Measurements not available
0 sqft
3pc Ensuite bath
-
Measurements not available
0 sqft
Bedroom
-
Dimensions 11 ft x 10 ft ,2 in
111.83 sqft
Listing courtesy of: Boyes Group Realty Inc.
This REALTOR.ca listing content is owned and licensed by REALTOR® members of The Canadian Real Estate Association.